Our work speaks for itself.

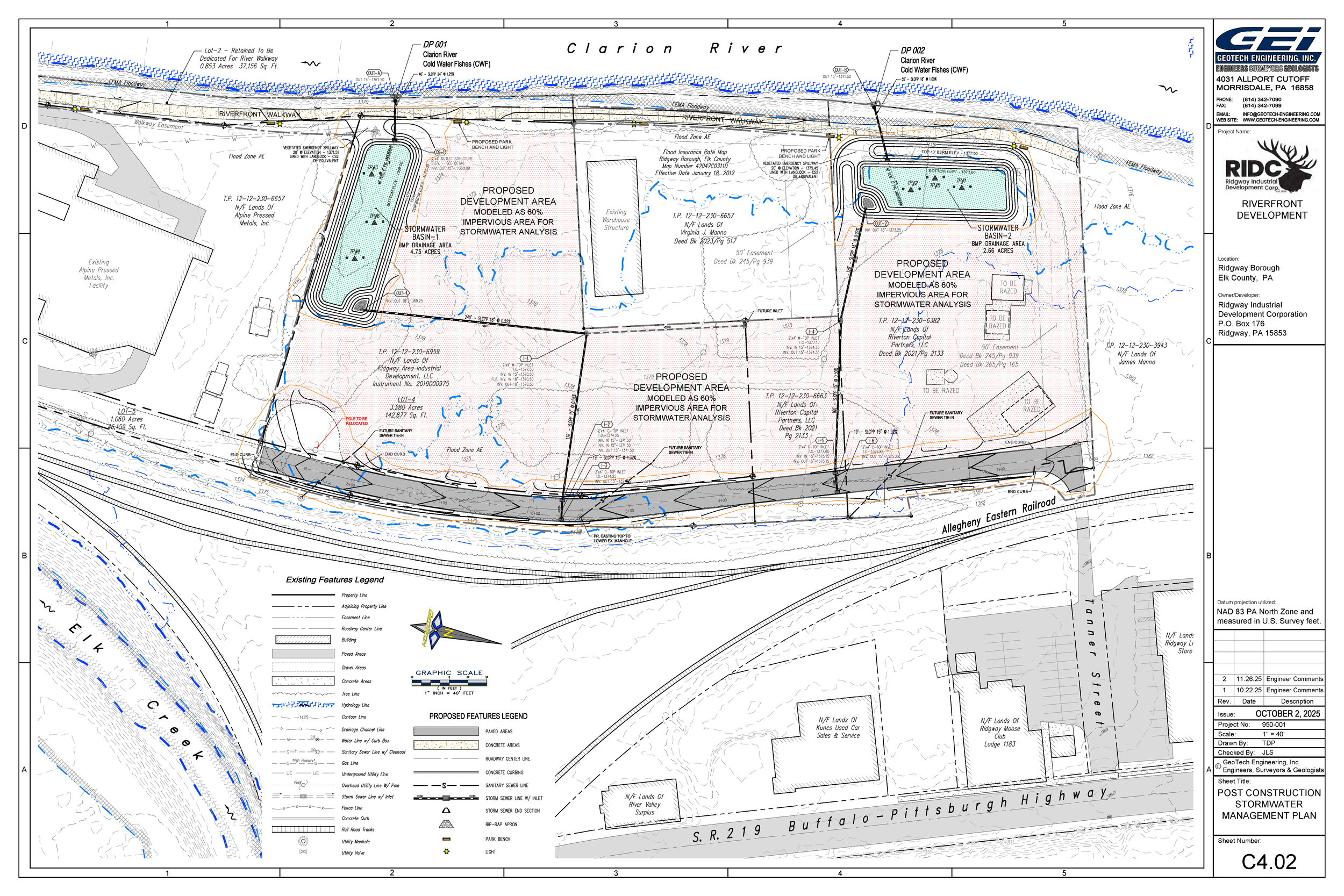
Tannery Drive Riverfront Site

In late 2019, the organizations responded quickly when Metal Powdered Products announced the closure of its Ridgway facility. Within days, a plan was developed and the property was acquired to prevent long-term vacancy and economic loss.

The site included:

  • Approximately 14 acres of riverfront land

  • A 54,000 square foot industrial building

Despite delays caused by the COVID pandemic, improvements were made to the site. The building was later sold to another regional manufacturer, bringing new employment opportunities to Ridgway. Nine acres of riverfront land were retained and remain available for future redevelopment.

Next
Next

Trail Connectivity Initiatives